Fotogaléria
Pozemky - komerčné na predaj v Bratislave - Devínska Nová Ves
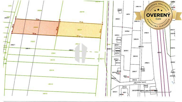
Ak premýšľate nad investovaním do pozemkov, ktorých hodnota neustále rastie, ponúkame Vám predaj 2 pozemkov v katastrálnom území Devínska Nová Ves /Devínske jazero/. Devínske jazero sa nachádza v krásnom prírodnom prostredí Borskej nížiny v blízkosti lužných lesov. Cena za 1 m2 12 Eur. Viac informácii: Anna Bellová 0917 722 226, email: bellova@realitycenter.sk
1. pozemok 2392 m2
2. pozemok 2439m2
Podrobné informácie
Poloha nehnuteľnosti na mape
Devinske Jazero, Bratislava - Devínska Nová Ves, Slovensko
